kuća za prodaju, Gárdony

Glavna stranica » kuća za prodaju, Gárdony » kuća za prodaju, Gárdony

82 000 000 Ft

€212 402
Podaci davatelja oglasa

Szegedi Éva

Pisanje poruke
Poruka mora imati najmanje 10 karaktera.
Opis

Prevedeni tekst

Izvorni tekst
4890. Gárdonyban, 10 perc gyalogos távolságra a központtól és vasútállomástól, 1960-as években épült, 90-es évek elején bővített, 2016-ban és 2020-ban felújított, nettó 81 m2 nettó alapterületű, földszintes, szigetelt családi ház, verandával, terasszal, tárolóval, pincével, összközműves 873 m2-es telken eladó.

A kiváló állapotú eredeti vertfalú épület homlokzatára és a födémre kőzetgyapot hőszigetelés, a bővített tégla szerkezetű épületrész homlokzatára 8 cm-es grafitos hőszigetelés került. Az épület fűtését elektromos fűtőpanelek biztosítják alacsony fenntartási költségek mellett.

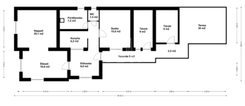
A ház 37 m2-es nappali-étkező, előszoba-étkező, konyha, fürdőszoba, wc, közlekedő helyiségekből áll. További hálószoba leválasztással kialakítható, illetve a verandáról nyíló jelenleg tároló funkciót ellátó helyiség is alkalmas lehet szoba kialakítására. Az épülethez csatlakozik egy tároló és egy 20 m2-es terasz, illetve a ház mellett található egy külön épület, fedett kiülő és pince. A kert gondozott, öntözése ásott kútból lehetséges. Ár: 82 MFt

podaci kuća

105 kvadratni metar

873 kvadratni metar

Obnovljen

Obiteljska kuća

Nije dano.

Električno grijanje

Električno grijanje

Komfor

Stariji od 50 godina

Nije dano.

Prizemna kuća

Nije dano.

Mapa