Stan za prodaju, Balatonföldvár

Glavna stranica » Stan za prodaju, Balatonföldvár » Stan za prodaju, Balatonföldvár

61 530 000 Ft

€156 752
Podaci davatelja oglasa

Agatity Roland

Pisanje poruke
Poruka mora imati najmanje 10 karaktera.
Opis

Prevedeni tekst

Izvorni tekst
Várható átadás: 2028. I. negyedév

KEDVEZŐ FIZETÉSI ÜTEMEZÉS!
A végleges adás-vételi szerződés aláírásakor a vételár 10%-át, a fennmaradó 90%-ot pedig a műszaki átadásra való felhíváskor esedékes megfizetnie.

Belle Vue lakópark a Balaton déli partján elhelyezkedő Balatonföldváron valósul meg a település délkeleti részén. A balatoni magas ponton fekvő telek csodálatos kilátást biztosít az épületegyüttesben található lakások nagy részének.

Az épületben 73 lakás kerül megépítésre, a garzonlakástól a nappali+3 hálószobásig.

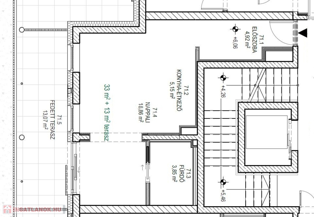
Ez a garzonlakás 33nm alapterületű+ tartozik hozzá egy 13nm-es fedett terasz is.

A lakásokhoz mindegyik szárnyon burkolt kialakítású lapos tetős teraszok készülnek. A földszinti lakásokhoz a teraszok mellett magánhasználatú kertrészek is csatlakoznak, a harmadik emeleten pedig épületszárnyanként 2-2 lakáshoz egy saját használatú zöldtetős tetőterasz is kapcsolódik. Zöldmezős beruházás, de a városépítészeti koncepció szerint a területre egy többemeletes, társasházas építészeti környezet lesz jellemző, amibe a tervezett épület is illeszkedik.

Az épületegyüttes a földfelszín alatt, a pinceszinten (parkoló szinten) egy tömeget képez, mely a földfelszín felett három épületszárnnyá (lépcsőházzá) válik szét. Az épületszárnyak közötti sétányokon burkolt terek és kiemelt kazettákban elhelyezett intenzív zöldtetők kerülnek kialakításra. A Balaton felé néző közös használatú kertrészben pedig egy szintén közös használatú medence is helyet kap.

A három épületrész - megegyezően a közös pinceszint mellett - fsz+3emelet+tetőterasz magasak. A közös pinceszinten, mélygarázsban 78 db parkolóhely lesz kialakítva.

Felszíni beálló: 2.6MFt
Teremgarázs beállóhely: 6.4MFt

podaci Stan

2. sprat

Cigla

Nije dano.

Odlično

Potpuni komfor

Novogradnja

33 kvadratni metar

Nije dano.

U vlastitoj svojini

Nije dano.

gleda na baštu

Mapa