Stan za prodaju, Budimpešta, VI gradska četvrt.

Glavna stranica » Stan za prodaju, Budimpešta, VI gradska četvrt. » Stan za prodaju, Budimpešta, VI gradska četvrt.

76 497 500 Ft

€200 329
Podaci davatelja oglasa

Makó Nelly

Pisanje poruke
Poruka mora imati najmanje 10 karaktera.
Opis

Prevedeni tekst

Izvorni tekst
Körúton belül, a belváros egyik központi részén, az Oktogon, és a Nyugati pályaudvar között, épül a főváros egyik exkluzív fejlesztése!
Összesen 12 db újépítésű lakás!

A lakások egyedisége egyrészt a régi idők és a modern kor ötvözetében rejlik. Egy klasszikus épület, melynek teljes körű felújítása során, a legfelső szinten 12 modern, tetőteraszos okos otthon kerül kialakításra.

Burkolatot, szanitereket, beltéri ajtók a mintakollekcióból a vevő kiválaszthatja!
Az ingatlan fűtése rendkívül energiatakarékos, hőszivattyús rendszerrel lesz kiépítve, a hő leadás a padló illetve mennyezetfűtésen keresztül történik.

A beépített konyhabútort kivéve az ÁR MINDENT TARTALMAZ!

Az ingatlanok átadása: 2026. 2.negyedév
Fizetési ütemezés:
25% Előszerződéskor
25% Szerkezetkész állapot
25% Nyílászárók beépítése, szigetelés megtörtént
25% Használatbavételi engedély
Ha valaki hitelből vásárolna, arra is van lehetőség,
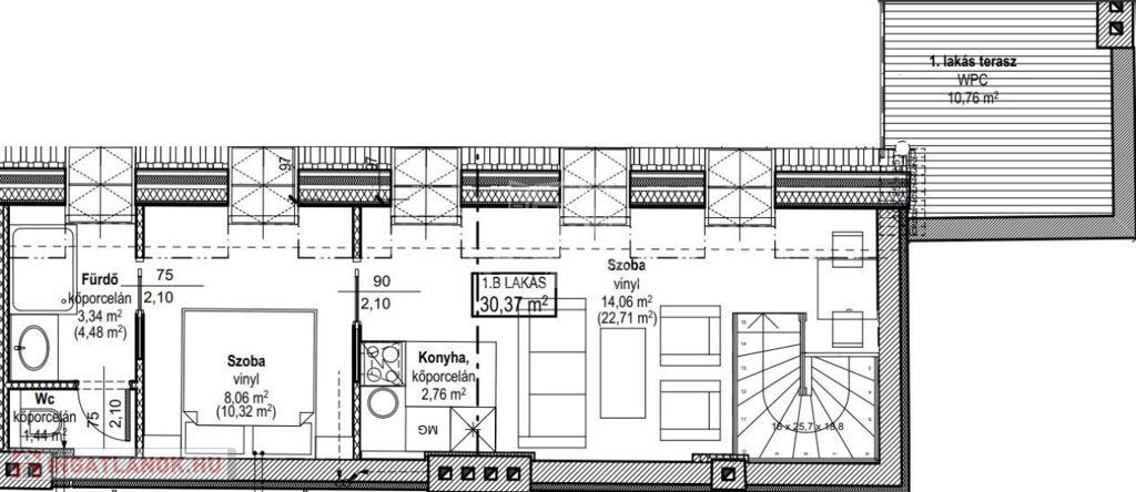
1/B lakás

podaci Stan

5. sprat

Cigla

Nije dano.

Odlično

Potpuni komfor

Novogradnja

41 kvadratni metar

Nije dano.

U vlastitoj svojini

Nije dano.

gleda na dvorište

Mapa