Stan za prodaju, Győr

Glavna stranica » Stan za prodaju, Győr » Stan za prodaju, Győr

59 005 750 Ft

€154 522
Podaci davatelja oglasa

Edvi Zsuzsanna

Pisanje poruke
Poruka mora imati najmanje 10 karaktera.
Opis

Prevedeni tekst

Izvorni tekst
Ha olyan otthont keres családjának, ahol nyugodt környezet, modern műszaki tartalom és kiváló elhelyezkedés találkozik, akkor ez a lakás Önnek szól.
Szitásdomb II.lakóparkban épülő, A+ energetikájú, prémium minőségű lakás kiváló kivitelezőtől

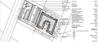
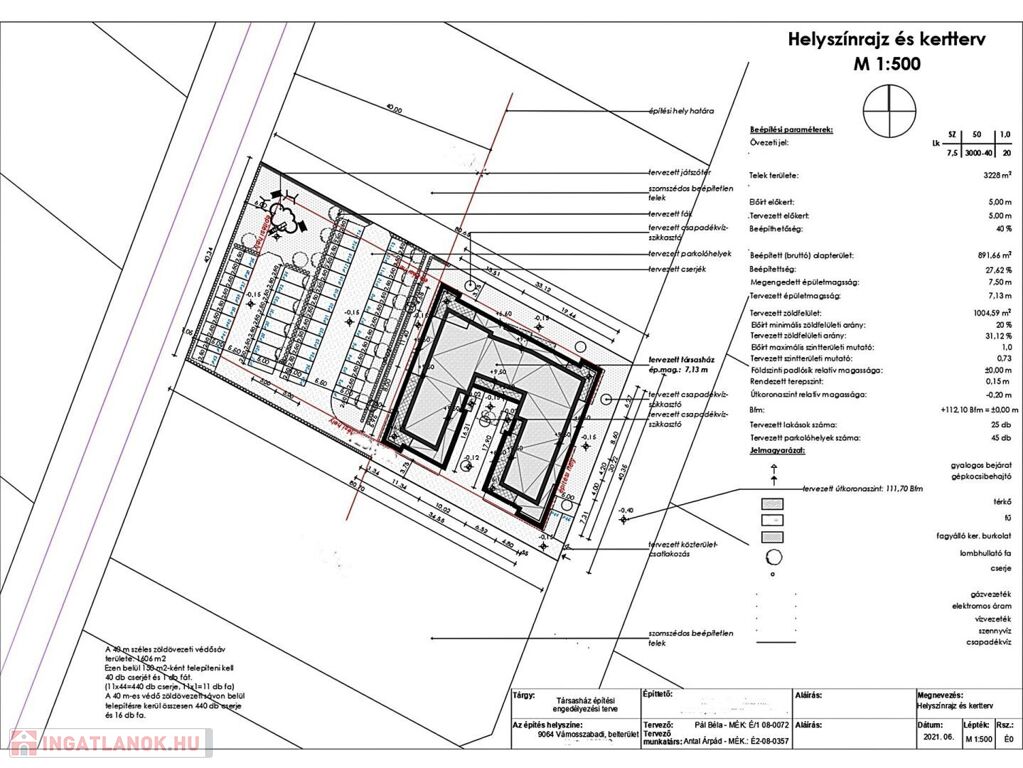
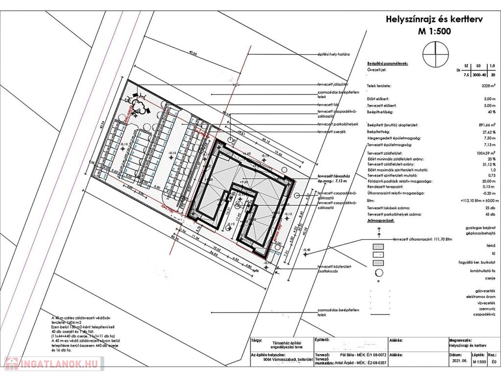
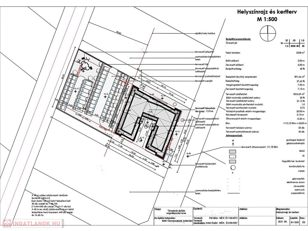
A Szitásdomb II. lakóparkban, Győr belvárosától mindössze 10 percre, az M1 autópálya elkerülő és az AUDI közelében kínálok prémium minőségben épülő, A+ energetikájú lakást, megbízható, nagy tapasztalattal rendelkező kivitelezőtől.
A terület közigazgatásilag Vámosszabadihoz tartozik, csendes, kertvárosi környezetben.

Lakópark előnyei
• családbarát, nyugodt környezet
• a lakóparkban kiépülő játszótér, óvoda, bölcsőde, orvosi rendelő, üzletek
• kiváló közlekedés Győr és az Ipari Park irányába
• ideális választás saját otthonnak és befektetésnek is

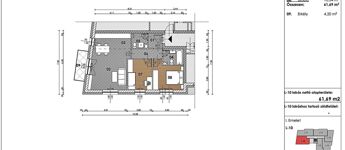
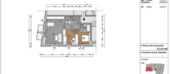
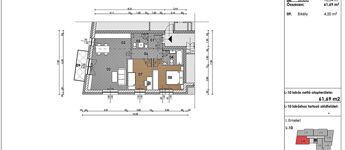
A lakás főbb jellemzői
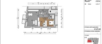
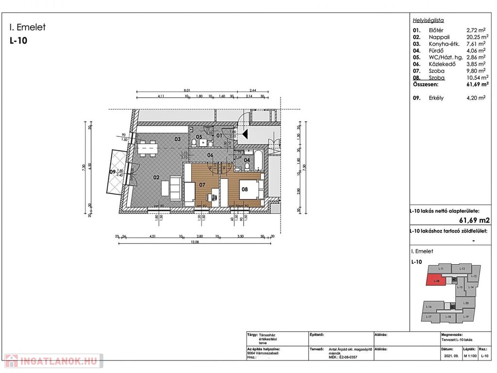
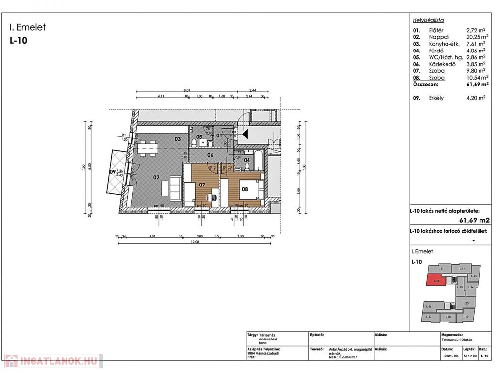
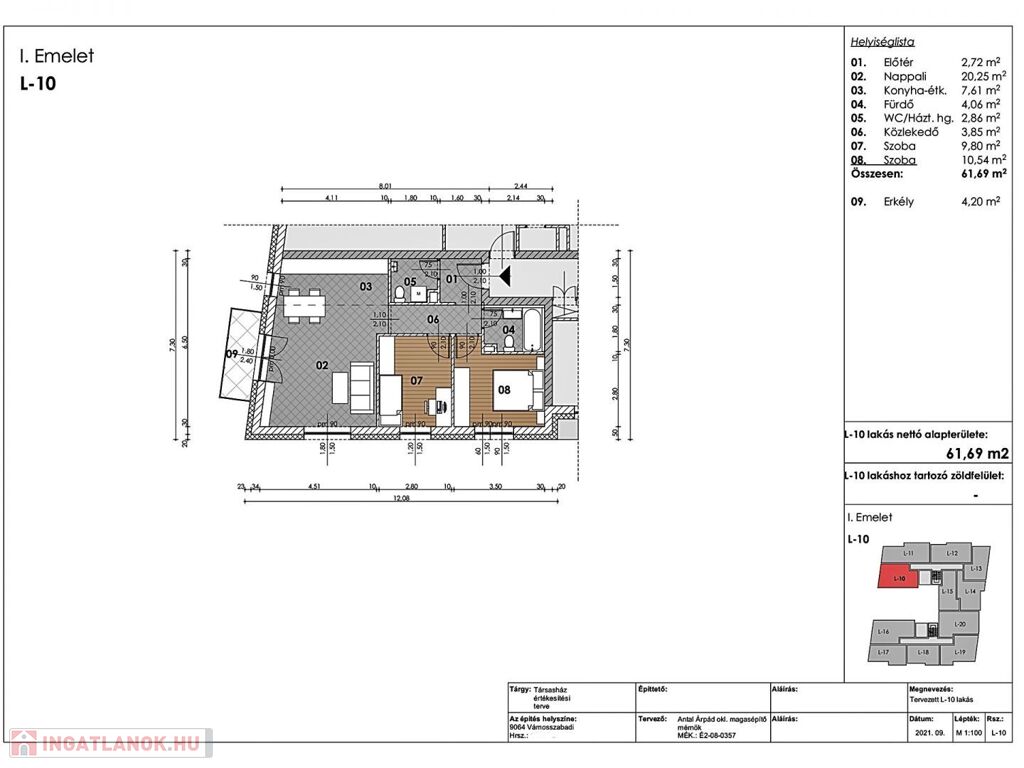
• 61,69 m² alapterület
• nappali + 2 külön nyíló szoba
• 4,2 m² erkély
1. emeleti, DK fekvésű
• praktikus, jól élhető alaprajz
• kiváló hő- és hangszigetelés


Helyiségek:
• Előtér: 2,72 m²
• Nappali: 20,25 m²
• Konyha–étkező: 7,61 m²
• Szoba: 9,8 m²
• Szoba: 10,54 m²
• Fürdő: 4,06 m²
• WC / háztartási helyiség: 2,86 m²
• Közlekedő: 3,85 m²

Műszaki tartalom – prémium kivitel
• 30 cm-es tégla főfalak, lakások között 30 cm hanggátló falazat
• 20 cm homlokzati hőszigetelés
• 3 rétegű üvegezésű INTERNORM nyílászárók kívül antracit, belül fehér színben
• GELAN biztonsági bejárati ajtó kívül antracit, belül fehér színben
• központi hőszivattyús rendszer egyedi mérőkkel
• padlófűtés + mennyezethűtés (klíma nem szükséges)
• elektromos alumínium redőny-előkészítés
• exkluzív edzett üveg erkélykorlát
• antracit színvilágú külső megjelenés

Parkolás
Minden lakáshoz kötelező 2 db gépkocsibeálló megvásárlása
Ár: 1.000.000 Ft + 27% ÁFA / db
(A lakáshoz tartozó parkolók: P22–P23)

Egyéb információk
• az ár emelt szintű fűtéskész állapotra vonatkozik
• tartalmazza az 5% ÁFÁ-t és a telekhányadot
• kulcsrakész befejezés egyedi megállapodás alapján
• várható átadás: 2026 tavasz
További költségek:
• ügyvédi díj: vételár 0,8%-a
• albetétesítés, földhivatali eljárás: egyszeri 150.000 Ft

Finanszírozás
Igény esetén ingyenes hiteltanácsadás és teljes körű ügyintézés biztosított.
Minden jelenleg elérhető állami támogatás igénybe vehető.
A társasház további elérhető lakásai:
L10 – 1. emelet, 61,69 m2 + 4,2 m2 erkély bruttó 59.005.750 Ft
L11 – 1. emelet, 62,45 m2 + 13,91 m2 erkély bruttó 64.199.625 Ft
L16 – 1. emelet, 65,49 m2 + 4,2 m2 erkély bruttó 62.520.750 Ft
L20 – 1. emelet, 68,41 m2 + 6 m2 erkély bruttó 66.054.250 Ft
L21 – 2. emelet, 98,71 m2 + 34,33 m2 erkély bruttó 107.184.375 Ft
L22 – 2. emelet, 92,46 m2 + 22 m2 erkély bruttó 95.654.250 Ft

Nagy az érdeklődés — ne halogassa a megtekintést!
Hívjon, nézze meg! Most még választhat!

podaci Stan

1. sprat

Nije dano.

Kondenzaciona cirko centrala

Prosječno

Nije dano.

Novogradnja

62 kvadratni metar

Nije dano.

Nije dano.

Nije dano.

Nije dano.