Prevedeni tekst
Izvorni tekst
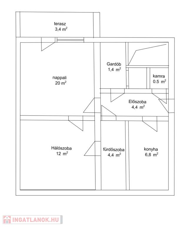
Nyíregyházán, a Deák Ferenc úton eladásra kínálok egy 55 nm-es, 1 szoba + nappalis, erkélyes lakást. Az ingatlan szigetelt, tégla építésű társasház 3. emeletén helyezkedik el.
További információk:
Műanyag nyílászárók
K-Ny-i festés
Fűtése: gázkonvektoros
2 külön nyíló szoba
Járólap és parketta burkolatok
Erkély
Gardrób
Spájz
Saját tároló
Tehermentes
Amennyiben további információra lenne szüksége, vagy szeretné megtekinteni az ingatlant, várom hívását! Jöjjön és nézze meg!
Ingatlanirodánk több éves tapasztalattal, megbízható háttérrel és teljes körű ügyintézéssel áll az Ön rendelkezésére a teljes értékesítési folyamat során a megtekintéstől a sikeres adásvételig.
Az ingatlan azonosítója: 69594Érdeklődni: 06302669818 Az ingatlan azonosítója: 69594 Érdeklődni: 06302669818
3. sprat
Cigla
Grijanje plinskim konvektorom
Dobro
Nije dano.
Stariji od 50 godina
55 kvadratni metar
Nije dano.
Nije dano.
Nije dano.
Nije dano.
Jednostavno tražite u našoj bazi podataka kuću, stan, ured, garažu, parcelu ili bilo kakvu nekretninu.
Nekretnina.hu je član grupe Real Estate Group.
Nekretnine za prodaju u Mađarskoj - Nekretnina.hu © 2026 Zadržavaju se sva prava