Prevedeni tekst
Izvorni tekst
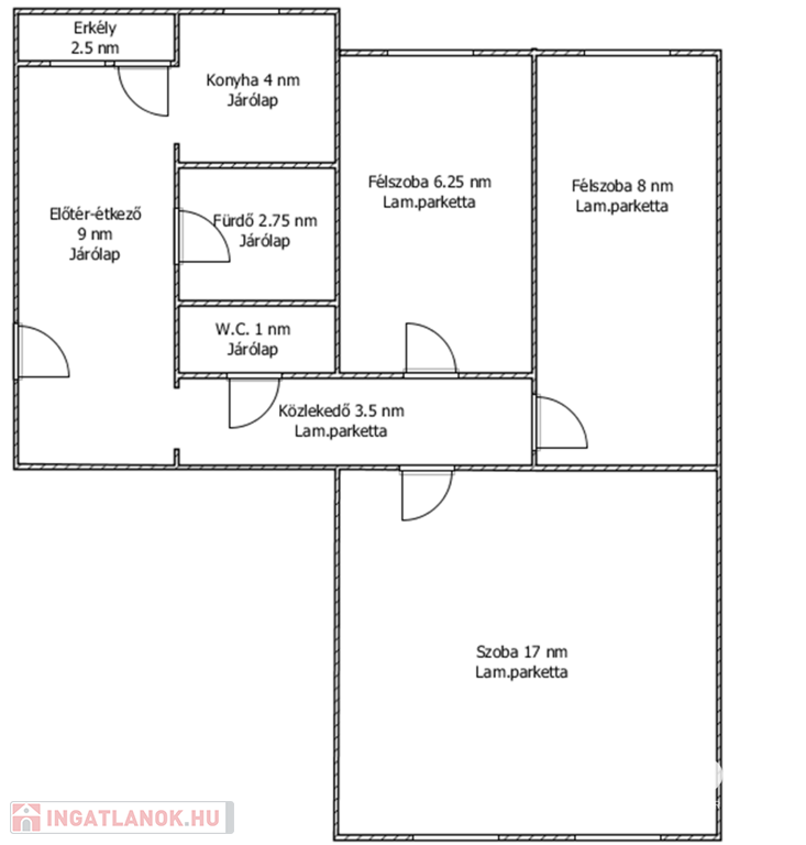
Salgótarjánban (Zagyvapálfalva) a Gorkij krt.-on, 56 nm-es, 4. emeleti, 1+2 félszobás, tehermentes, azonnal birtokba vehető lakás eladó!
Első lakást kereső fiataloknak, családoknak ideális választás lehet! A lokáció tökéletes!
Befektetésre is ajánlom, magas hozammal azonnal kiadható!
Helyiségei: 1 szoba, 2 félszoba, konyha, étkező/előtér, fürdőszoba, külön nyíló W.C., közlekedő, erkély.
A fűtést gázkonvektorok, a meleg víz ellátást átfolyós gázos vízmelegítő biztosítja.
A lakás kisebb esztétikai felújítást igényel. Festés és konyhabútor beszerzése után azonnal költözhető.
A városközpont 10 percen belül autóval elérhető, buszmegálló, TESCO, SPAR, posta, orvosi rendelő, gyógyszertár, óvoda, iskola, 100 méteren belül található.
(További képekért és információkért kérem hívjon!)
Nije dano.
Blokovi
Grijanje plinskim konvektorom
Za obnovu
Komfor
Nije dano.
56 kvadratni metar
Nije dano.
Nije dano.
Nije dano.
Nije dano.
Jednostavno tražite u našoj bazi podataka kuću, stan, ured, garažu, parcelu ili bilo kakvu nekretninu.
Nekretnina.hu je član grupe Real Estate Group.
Nekretnine za prodaju u Mađarskoj - Nekretnina.hu © 2025 Zadržavaju se sva prava