Prevedeni tekst
Izvorni tekst
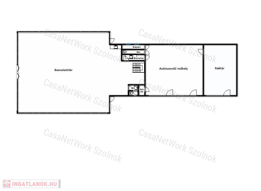
A szolnoki CASANETWORK ingatlaniroda bérlésre kínálja a SZOLNOKON A SZÉCHENYIN található bemutató termét, autószerelő műhelyét, üzlethelyiségét.
A kiadó bemutató terem és kiszolgáló helyiségek jellemzői:
- három önálló helyrajzi számon összesen 2770 m2-es telek
- bemutatótér és autószerelő műhely a földszinten összesen 450 m2
- közvetlen utcafrontos, bemutatóterem előtt ingyenes parkolás
- szociális helyiségek a földszinten helyezkednek el
- emeleten 63 m2-en 2 db iroda és közlekedő
- gáz cirkó fűtés, - klimatizált épület
- az épületek 2,3 - 5,0 m belmagasságúak
-a bemutató terem és a szerelő műhely részben bútorozottak, berendezettek
-a kiadási ár: 1.590.000 Ft+ ÁFA/hó + rezsi költség + három havi kaució + 1 havi bérleti díj
Amennyiben a szolnoki kiadó bemutatóterem felkeltette érdeklődését, hívjon bizalommal.
Amennyiben a fenti 155805975-ös azonosító számú kiadó üzlethelyiség, vagy bármely kínálatunkban található ingatlan felkeltette érdeklődését, kérem hívjon bizalommal!
/A hirdetésben szereplő információk a megbízótól kapott adatok alapján készültek./
Irodánk teljes körű szolgáltatással áll ügyfelei rendelkezésére: hitelügyintézés, ügyvédi szolgáltatás, ingatlan értékbecslés, energetikai tanúsítvány készítése.
CasaNetWork - Ingatlanban otthon vagyunk!
Dobro
Nije dano.
Nije dano.
510 kvadratni metar
Nije dano.
Nije dano.
Jednostavno tražite u našoj bazi podataka kuću, stan, ured, garažu, parcelu ili bilo kakvu nekretninu.
Nekretnina.hu je član grupe Real Estate Group.
Nekretnine za prodaju u Mađarskoj - Nekretnina.hu © 2026 Zadržavaju se sva prava