Ugostiteljski objekat za prodaju, Komárom

Glavna stranica » Ugostiteljski objekat za prodaju, Komárom » Ugostiteljski objekat za prodaju, Komárom

39 000 000 Ft

€102 483
Podaci davatelja oglasa

Mlinkovics Mónika

Pisanje poruke
Poruka mora imati najmanje 10 karaktera.
Opis

Prevedeni tekst

Izvorni tekst

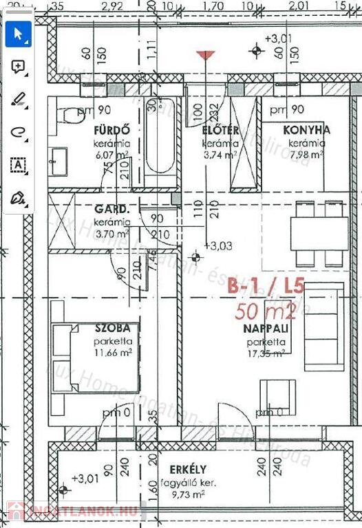
ELADÓ ÜZLETHELYISÉGEK ÚJ ÉPÍTÉSŰ LAKÓPARKBAN KOMÁROMBAN

A lakópark a közúti forgalom elől elzárt hatalmas zöld területen helyezkedik el ennek köszönhetően élhető környezetet biztosít az ott lakóknak!

Komáromban a Mártírok útján újonnan kialakított lakóparkban ÜZLETHELYISÉGEK bevezető áron leköthetőek.

A Gyermek Város Lakóparkban "A" "B" "C" épület típusok helyezkednek el. 


Amennyiben a Lux Ingatlaniroda által kínált hirdetés felkeltette az érdeklődésed, keress bizalommal! Kollégáim díjmentes és bankfüggetlen hitelügyintézéssel állnak rendelkezésedre.

Lux Ingatlan - Számolj velünk

podaci Ugostiteljski objekat

Kao novo

Nije dano.

Nije dano.

52 kvadratni metar

Nije dano.

Nije dano.