kuća za prodaju, Budimpešta, XVIII gradska četvrt.

Glavna stranica » kuća za prodaju, Budimpešta, XVIII gradska četvrt. » kuća za prodaju, Budimpešta, XVIII gradska četvrt.

140 990 000 Ft

€387 474
Podaci davatelja oglasa

Fodor Zsolt

Pisanje poruke
Poruka mora imati najmanje 10 karaktera.
Opis

Prevedeni tekst

Izvorni tekst
ELADÓ ÚJ ÉPÍTÉSŰ, 2 SZINTES, KLASSZIKUS IKERHÁZ, XVIII.KERÜLET FERIHEGY RÉSZÉN, 541 NM-ES TELKEN LAKÁSONKÉNT 270M2-ES TELEK RÉSSZEL. AZ ÉPÜLET A SZIGORÚ KÖRNYEZETVÉDELMI ÉS ENERGETIKAI ELVÁRÁSOKNAK MEGFELEL!

A lakások hasznos lakóterülete 120m2 és 119m2. Amerikai-konyhás nappalin kívül 3 külön bejáratú hálószobával rendelkezik. Nappalija közvetlen kertkapcsolatos, 12 nm-es terasz és 20 nm-es garázs-tároló tartozik a lakásokhoz.

Az építkezés még nem kezdődött el, várható kezdés 2026. májusa, a befejezés 2027. első negyedévében várható. Az ingatlan minden tekintetben meg fog felelni a mai kor elvárásainak. Burkolatok, szaniterek, beltéri ajtók választhatóak. A lakás fűtése és melegvíz ellátása levegő-víz hőszivattyúval készül, amely 210 l-es melegvíz tartályt is tartalmaz. A lakás hűtése 1 db inverteres hűtő-fűtő klímával lesz megoldott.

Lakások ára:
1. Lakás: 140.990.000.- Forint (140m2-es lakás)
2. Lakás: 139.990.000.-Forint (139m2-es lakás)

Műszaki tartalom:
• 30-as főfal, 10 cm-es tégla válaszfalak, 10 cm grafitos homlokzati és 30 cm födémszigetelés.
• Vasbeton sávalap.
• Fehér, műanyag tokos, 3 rétegű, több légkamrás, thermo üvegezésű nyilászárók, elektromos redőny, motorizálásra előkészítve.
• Hőszivattyú, klíma.
• Antracit vagy barna színű cserép, készültségi fok függvényében választható.

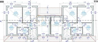
Elrendezés:
Földszint:
Előtér, terasz kapcsolatos nappali, étkező-konyha, kamra, zuhanyzós fürdőszoba, garázs és az emeletre vezető lépcső.

Emelet:
Három külön nyíló hálószoba, egy fürdőszoba és egy háztartási helyiség.

Tulajdonságok:
• Privát kerítéssel elválasztott saját telekrész.
• Elektromos kapu előkészítés és hőszigetelt, szekcionált garázs ajtó és motor az árban.
• Teljes riasztó rendszer, kezelő egységgel együtt.

AZ ÁRAK KULCSRAKÉSZ ÁLLAPOTRA VONATKOZNAK!

A környék infrastruktúrája kiváló, minden kiszolgáló egység és tömegközlekedés pár perc sétára megtalálható.

Irodánk teljes körű segítséget nyújt:
•díjmentes hitelügyintézés
•CSOK Plusz tanácsadás
• banki partneri háttér a vásárlás minden lépésében

Az alaprajz és a leírás kizárólag tájékoztató jellegű.

Ne maradjon le erről az igazán különleges lehetőségről – hívjon bizalommal!

podaci kuća

120 kvadratni metar

270 kvadratni metar

Odlično

Dvojna kuća

Cigla

Nije dano.

Nije dano.

Potpuni komfor

Novogradnja

Nije dano.

Nije dano.

Nije dano.