kuća za prodaju, Érd

Glavna stranica » kuća za prodaju, Érd » kuća za prodaju, Érd

174 900 000 Ft

€451 985
Podaci davatelja oglasa

Venczel Bea

Pisanje poruke
Poruka mora imati najmanje 10 karaktera.
Opis

Prevedeni tekst

Izvorni tekst
PRÉMIUM IKERHÁZ ELADÓ ÉRD FENYVESI RÉSZEN, PANORÁMÁS TERASSZAL !

Rengeteg extrával:
elektromos redőny, üvegkorlát, mennyezet hűtés-fűtés !

Érd Fenyves Parkváros keresett részen prémium minőségű ikerház épül. Az épületek dupla állásos garázzsal érintkeznek csak, lakótérrel nem.
Így semmilyen hang nem zavarhatja a nyugalmát.
Közös, térkövezett szolgalmi úttal , mely széles és kényelmes parkolást és közlekedést biztosít. Ez az épület az utcafronti.
Az ingatlant a 2025-ös év kedvezményes feltételeivel tudja megvásárolni, az építkezés céges.
Foglalja le már most leendő otthonát 10%-al. Az építkezés 80 %-os készültségnél tart, már csak a burkolatokat, szanitereket és ajtókat kell kiválasztania .
A környéken rengeteg referencia ház, amit közösen megtekinthetünk segítve a döntést.
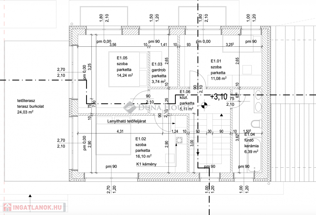
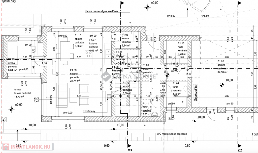
Az ingatlan nettó hasznos területe 174 m2 lakótér + 36 m2-es dupla állásos garázs, 2 db terasz és 2 db erkély, 500 m2 telekkel.
A helyiségek napfényesek, köszönhetően a jó tájolásnak és a jó méretű egyedi nyílászáróknak.
Elosztását tekintve:
Földszint:- Előszoba- 1 jó méretű hálószoba- Tágas , amerikai konyhás nappali- Kamra- Fürdőszoba- Háztartási helyiség- Tároló- 2 állásos garázs - 11 m2-es fedett terasz- 553 m2-es saját kert
Emelet:- 3 szoba terasszal és erkéllyel / 23 m2-es/, ahonnan hangulatos kilátás tárul elénk- Fürdőszoba

EXTRÁK:- Mennyezet hűtés-fűtés- Elektromos alumínium redőnyök- Térkövezett út - Üvegkorlát- Hörmann elektromos garázskapu
Műszaki adatok:- 30-as Leier tégla, 10 cm válaszfalak- 15 cm homlokzati szigetelés- Hőszivattyú 200 literes használati meleg víz tartállyal- H- tarifás mérőszekrény kialakítás
Minden helyiségben padlófűtés
Betoncserép- 3 rétegű 6 légkamrás egyedi fa nyílászárók, kívül-belül antracit kivitelben- 2 db autónak kocsibeálló- Riasztó előkészítése- Szaniterek- Hideg/meleg burkolatok ( 10 000 Ft/m2 meleg: 7 000 Ft/ m2 )- Beltéri ajtók ( 90 000 Ft/ db )- Bejárati ajtó

Környék rendezett, minden perceken belül elérhető. Iskola, óvoda, bevásárlási lehetőségek, M7 autópálya.
Várható átadás: 2026 Március

Ha megtekintené az ingatlant, kérem hívjon bizalommal.

podaci kuća

174 kvadratni metar

500 kvadratni metar

U izgradnji

Dvojna kuća

Cigla

Električno grijanje

Nije dano.

Potpuni komfor

Novogradnja

Nije dano.

Prizemna kuća

Nije dano.

Mapa