kuća za prodaju, Kecskemét

Glavna stranica » kuća za prodaju, Kecskemét » kuća za prodaju, Kecskemét

56 000 000 Ft

€147 117
Podaci davatelja oglasa

Göbölyös Edit

Pisanje poruke
Poruka mora imati najmanje 10 karaktera.
Opis

Prevedeni tekst

Izvorni tekst
CSAK NÁLUNK KERESSE!!!
Kecskeméthez közel, a központtól gyors, új úton, 10 perc alatt megközelíthető részen kínálunk eladó házakat!!!

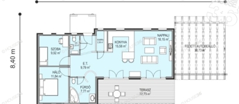
Kiváló elhelyezkedésű, új építésű környéken kínáljuk ezt a 80 m2-es, Nappali + 2 szobás prémium kategóriás családi házat, önálló 400 m2-es telken.
Aszfaltozott út készül hamarosan.


Egyéb paraméterek:


Wienerberger Porotherm X-Therm tégla (+ 40 % hőtartás)
15 cm szigetelés
400 m2 -es összközműves önálló telek
hőszivattyús fűtésrendszer
padlófűtés
prémium minőségű műanyag nyílászárók
elektromos alumínium redőnyök
riasztó
elektromos kapu
elektromos garázskapu
szaniterek 1 millió forintig az árban
hideg - meleg burkolatok 8500.-/ m2
ár garancia
idő garancia
várható átadás szerdéskötéstől számított 10hónap

A telekre bruttó 240 m2 -es ház is választható, ármódosítással.

AZ ÁR AZ ÉPÍTÉSI TELEK ÁRÁT IS TARTALMAZZA!


Az adatok tájékoztató jellegűek!
FIGYELEM! Az adatok Megbízónktól kapott információk alapján készültek, pontosságukért fele
Az iroda legfrissebb, aktuális kínálatát a HOUSE36 saját weboldalán találja!

podaci kuća

80 kvadratni metar

400 kvadratni metar

U izgradnji

Obiteljska kuća

Cigla

Električno grijanje

Nije dano.

Nije dano

Novogradnja

Nije dano.

Prizemna kuća

Nije dano.

Mapa