kuća za prodaju, Vámosmikola

Glavna stranica » kuća za prodaju, Vámosmikola » kuća za prodaju, Vámosmikola

59 900 000 Ft

€156 864
Podaci davatelja oglasa

Bondár Gábor

Pisanje poruke
Poruka mora imati najmanje 10 karaktera.
Opis

Prevedeni tekst

Izvorni tekst
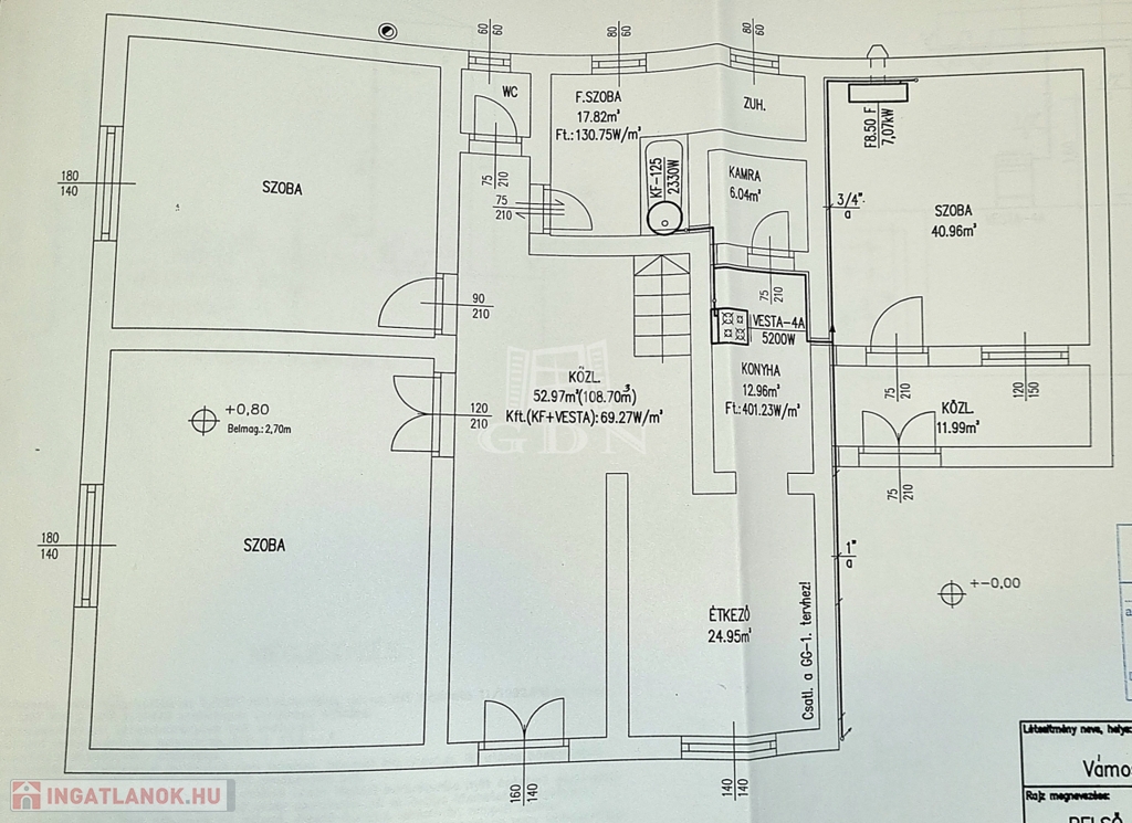
Budapesttől egy órára, a festői Vámosmikolán kínálunk eladásra egy 160 nm-es, 5 szobás, kétgenerációs családi házat, különálló lakrésszel, műhellyel.

A 2319 nm-es, sík, gondozott, gyümölcsfákkal ültetett telek gazdálkodásra kiválóan alkalmas.

Az ingatlanhoz külön bejáratú üzlethelyiség, 2 részes, 104 nm-es,
szerelőaknás autószerelő műhely, garázs tartozik.

A melléképületben 1 szoba, konyha, fürdőszobás, hangulatos garzonlakás lett kialakítva.


Az ingatlan, csendes, aszfaltos utcában helyezkedik el, közel a faluközponthoz.

Iskola, óvoda, üzletek, buszmegálló pár perc sétára található.
Vállalkozásra, állandó lakhatásra, akár összeköltözőknek is remek választás!

Vámosmikola egy szép ősi település a Börzsöny ölelésében.
A település a túrázók egyik kedvenc célpontja, a közelben kisvasút, erdei strand, éttermek kényeztetik az ide látogatókat.
A falut kedves, segítőkész emberek lakják, a közbiztonság jó!

CSOK, KEDVEZMÉNYES HITEL IGÉNYELHETŐ!

Várom megtisztelő hívását hétvégén is!

Bankfüggetlen hitelcentrumunk minden elérhető bank és hitelintézet ajánlatát versenyezteti az Ön kedvéért, ráadásul díjmentesen. Önnek nincs más dolga, mint elbeszélgetni munkatársunkkal, aki a hallott információk alapján versenyre hívja a bankokat, hogy Ön hosszú távon is a legjobb konstrukciót kaphassa. A legjobb ajánlatokból végül Ön választhatja ki a nyertest. Munkatársaink sokéves szakmai tapasztalattal várják Önt, előre egyeztetve akár a normál munkaidő után is.

podaci kuća

160 kvadratni metar

2 319 kvadratni metar

Prosječno

Obiteljska kuća

Cigla

Kondenzaciona cirko centrala

Gáz Grijanje na plin

Dupli komfor

21-50 godina

Nije dano.

2 nivoa

Nije dano.

Mapa