parcela / zemljište za prodaju, Diósd

Glavna stranica » parcela / zemljište za prodaju, Diósd » parcela / zemljište za prodaju, Diósd

89 000 000 Ft

€229 163
Podaci davatelja oglasa

Bognár László

Pisanje poruke
Poruka mora imati najmanje 10 karaktera.
Opis

Prevedeni tekst

Izvorni tekst
Eladó belterületi telek Diósdon – 2 ház építésére alkalmas!

Eladásra kínálok Diósd belterületén egy nagy méretű, összközműves telket, kiváló ár-érték aránnyal.
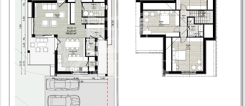
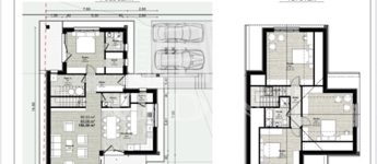
Az ingatlan építési engedéllyel és tervekkel rendelkezik 2 családi ház építésére, így azonnal kezdhető az építkezés!

Főbb adatok:

Helyszín: Diósd, belterület

Méret: 1750 m²

Összközműves (víz, villany, csatorna)

Építési engedély és tervdokumentáció rendelkezésre áll

Besorolás: Lke-11 (kertvárosias lakóövezet)
Beépíthetőség: 20%
Megengedett építménymagasság: 5,5 m
Építési mód: szabadon álló

Csendes, rendezett környék, mégis közel mindenhez

Kiváló befektetési lehetőség, akár két generáció részére is

Kitűnő ár-érték arány!
Jöjjön el, nézze meg, nem fog csalódni!

podaci parcela / zemljište

Građevinska parcela.

Unutar parcele

Nema

Unutrašnjost naselja

Nije dano.

1 750 kvadratni metar

Unutar parcele

Unutar parcele

Mapa