parcela / zemljište za prodaju, Harta

Glavna stranica » parcela / zemljište za prodaju, Harta » parcela / zemljište za prodaju, Harta

120 000 000 Ft

€312 598
Podaci davatelja oglasa

Borosné Hajnalka

Pisanje poruke
Poruka mora imati najmanje 10 karaktera.
Opis

Prevedeni tekst

Izvorni tekst
Eladó ipari csarnok a Duna kanyarulatában kiváló adottságokkal.
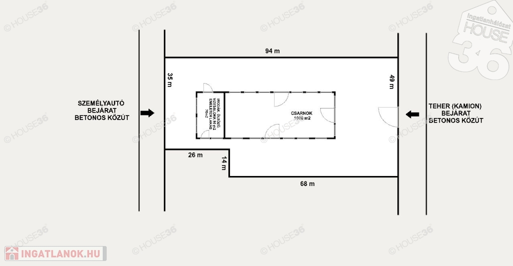
Megvételre kínálunk egy 1000 m2 -es ipari csarnokot amely 4388 m2 -es telken helyezkedik el.
Az ingatlan kiváló lehetőségeket biztosít ipari, gyártó, és logisztikai tevékenységekre, hiszen utánfutók, hajóalkatrészek gyártására használták.
Ez az ingatlan tökéletes választás vállalkozások számára ,akik egy jól megközelíthető, nagy területtel rendelkező, azonnal használható ipari csarnokot keresnek.

A csarnok főbb jellemzői:
- három ipari kapu a könnyű be és kirakodásért
- iroda, öltöző, tusoló és étkező tér a dolgozók kényelméért
- tetőtéri rész ( 76 m2) amely lakás vagy további iroda kialakítására alkalmas, dunaparti panorámával
- erős ipari infrastruktúra : 3 x 100 Amper áram, saját trafó
- masszív szerkezet, zsalukő betonnal kiöntve,5 cm szigetelés
- trapézlemez tető
- ventillátoros légbefúvós kályha

Ne hagyja ki ezt a remek lehetőséget!
Hívjon most, és tekintse meg személyesen!
Az iroda legfrissebb, aktuális kínálatát a HOUSE36 saját weboldalán találja!

podaci parcela / zemljište

Industrijska parcela.

Nije dano.

Nije dano.

Unutrašnjost naselja

Nije dano.

4 387 kvadratni metar

Nije dano.

Nije dano.

Mapa